Overview

  • House, Residential
  • Property Type
  • 7
  • Bedrooms
  • 2
  • Bathrooms

Description

This deceptively large bungalow is just a short stroll from the sought after beaches of Cobo and the village centre.
Currently set out as a sprawling seven bedroom staff house, the opportunities to consolidate some of these spaces and create a more conventional family property are obvious. Most will look to modernise but it offers the opportunity to do so while living in the property.
There is parking for four cars (with the possibility to create more) as well as a south-facing enclosed rear garden.

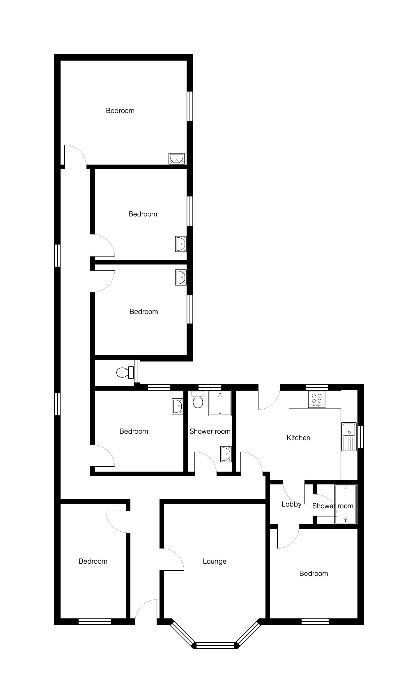
Measurements:
Hall 4.7m x 1m and 2.6m x 2.1m
Lounge (currently a bedroom) 3.7m x 2.6m
Shower room 2.8m x 1.5m
Kitchen 4.2m x 3.7m
Bedroom 3.6m x 2.4m
Lobby 0.9m x 1.2m
Shower room 1.4m x 1.2m
Inner hall 3.8m x 0.9m
Bedroom 2.9m x 2.8m
Hall 8.3m x 0.9m
WC 1.6m x 0.8m
Bedroom 3.7m x 3.1m
Bedroom 3.7m x 3.1m
Bedroom 4.2m x 3.6m

  • Address Ruette de la Tour
  • Parish Castel
  • Postcode GY5 7TU

Details

Updated on February 9, 2026 at 4:54 pm
  • Price: £725,000
  • Bedrooms: 7
  • Bathrooms: 2
  • Property Type: House, Residential
  • Property Status: For Sale, Under Offer
  • Market: Local Market
  • Parking: 4

Additional details

  • Heating: Electric
  • Drainage : Mains drainage

Floor Plans

image

Description:

Similar Listings

Compare listings

Compare
Andy Biggins
  • Andy Biggins