La Plaquiere, Cobo

  • £1,200,000
Cobo Coast Road

Overview

  • House, Residential
  • Property Type
  • 3
  • Bedrooms
  • 2
  • Bathrooms

Description

Is this your dream location?
There are few better frontline sea views available in Guernsey and Maison are delighted to offer this lovely Cobo home to the market.
Currently used as a staff house, it is fair to say that the property will need some upgrading in places, alternatively it could be totally redesigned or developed… any work would be worthwhile given the incredible views that will be on offer.
Currently a three bedroom property with excellent reception space, garage, parking and garden, the opportunities here are pretty much endless.

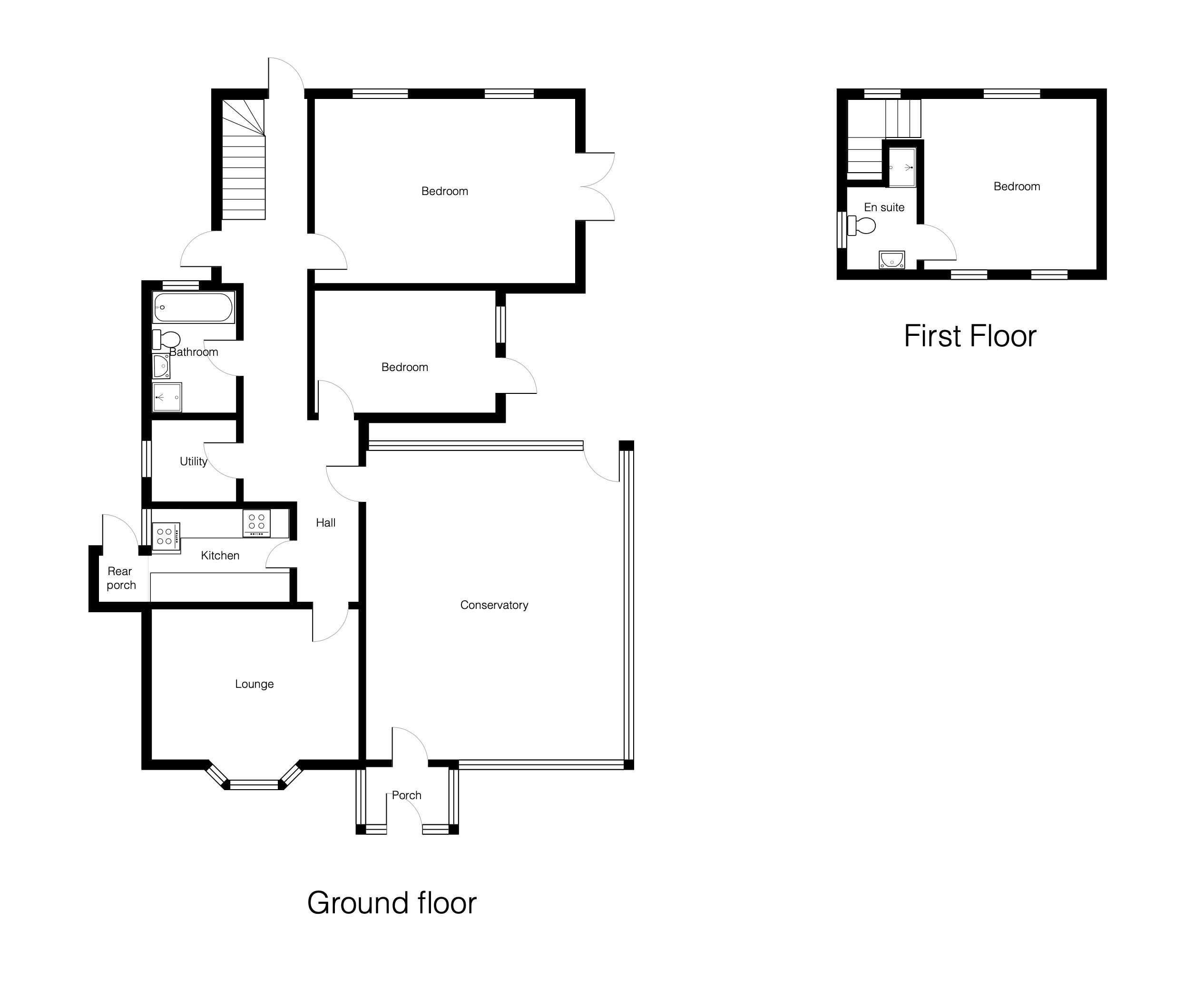
Measurements:
Ground floor:

Porch 1.8m x 1.2m
Conservatory 6.5m x 5.4m
Hallway 4.1m x 1.3m and 3.1m x 0.9m
Inner hallway 1.6m x 3.1m
Bedroom 4m x 5.3m
Bathroom 3m x 2.4m
Utility 2.3m x 1.7m
Bedroom 3.8m x 3.2m
Lounge 4.6m x 4.7m
Kitchen 3.2m x 2.2m
Rear porch 2.7m x 1.1m

First floor:
Bedroom 5.5m x 4.1m
En suite 2.3m x 1.7m

  • Address Cobo Coast Road
  • Parish Castel
  • Postcode GY5 7HB

Details

Updated on March 4, 2026 at 7:22 pm
  • Price: £1,200,000
  • Bedrooms: 3
  • Bathrooms: 2
  • Property Type: House, Residential
  • Property Status: For Sale
  • Market: Local Market
  • Parking: 10

Additional details

  • Drainage: Mains drains
  • Heating: Gas central heating

Floor Plans

image

Description:

Similar Listings

Compare listings

Compare
Andy Biggins
  • Andy Biggins