La Maison de Haut, Castel

  • £975,000
La Sauvarinerie Lane, King's Mills
Featured For Sale Local Market New to Market

La Maison de Haut, Castel

La Sauvarinerie Lane, King's Mills
  • £975,000

Overview

  • House, Residential
  • Property Type
  • 4
  • Bedrooms
  • 1
  • Bathroom

Description

This classic Guernsey farmhouse offers wonderful potential to create a lovely family home in a quiet and elevated location close to the west coast.
Set on a generous plot there is also plenty of scope to develop elements of the property for multi-generational living.
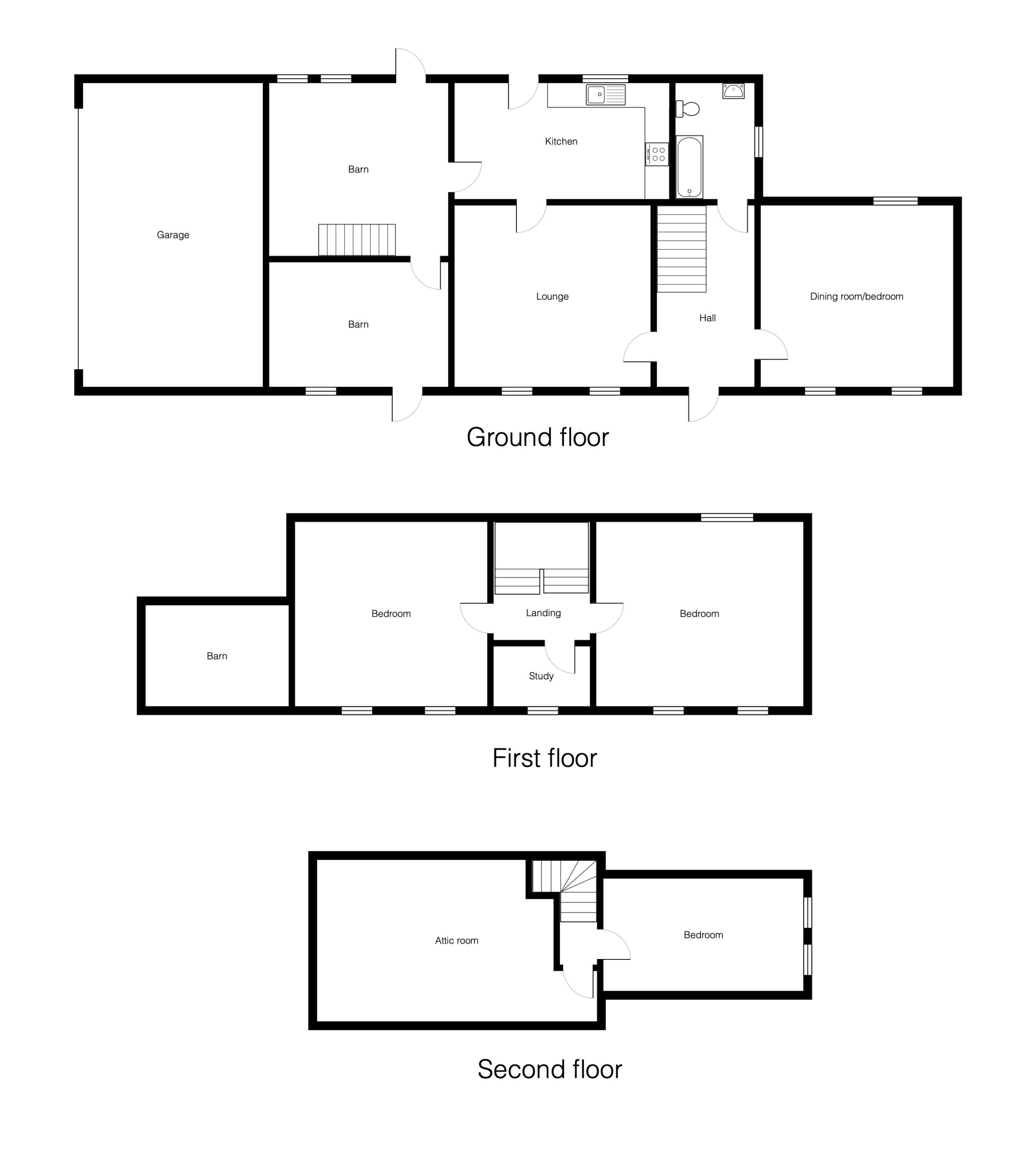
Although in need of refurbishment this detached home is currently offering three bedrooms, study, attic room, bathroom, two reception rooms and kitchen.
Two large barns/storage rooms and a double garage offer plenty of options to increase the accommodation.
The gardens wrap around the property with pleasant views over Kings Mills.

Measurements:
Ground floor:

Kitchen 5.9m x 2.9m
Lounge 4.9m x 4.5m
Dining room/bedroom 4.8m x 4.5m
Bathroom 3m x 2.1m

First floor:
Bedroom 4.8m x 4.6m
Bedroom 5.2m x 4.6m
Study 2.4m x 1.5m

Second floor:
Bedroom 5m x 2.8m
Attic room 7.7m x 4m

Barn 4.5m x 3.1m
Barn 4.4m x 4.1m
Garage 7.6m x 4.5m
Greenhouse 5m x 3.8m


Appliances:
Bosch washing machine
Belling double oven
Hotpoint extractor
AEG Fridge

  • Address La Sauvarinerie Lane, King's Mills
  • Parish Castel
  • Postcode GY5 7AN

Details

Updated on January 28, 2026 at 6:49 pm
  • Price: £975,000
  • Bedrooms: 4
  • Bathroom: 1
  • Property Type: House, Residential
  • Property Status: For Sale
  • Market: Local Market

Additional details

  • Drainage: Cesspit

Floor Plans

image

Description:

Similar Listings

Compare listings

Compare
Andy Biggins
  • Andy Biggins